1. Accueil
  2. Nos maisons
  3. Maisons Plain-pied
  4. Maison plain-pied de 80 m²
Retour
FIRST 80

Maison plain-pied de 80 m²

email Elaborons votre projet

Découvrez notre modèle FIRST 80 :

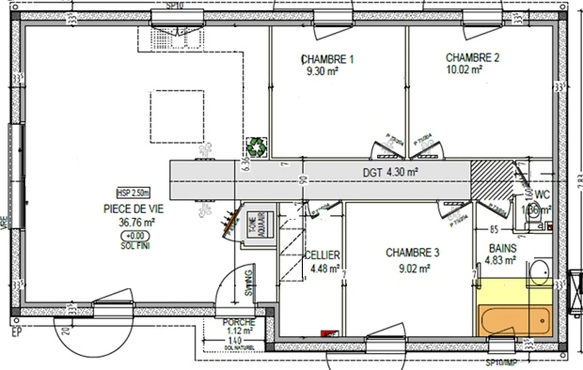
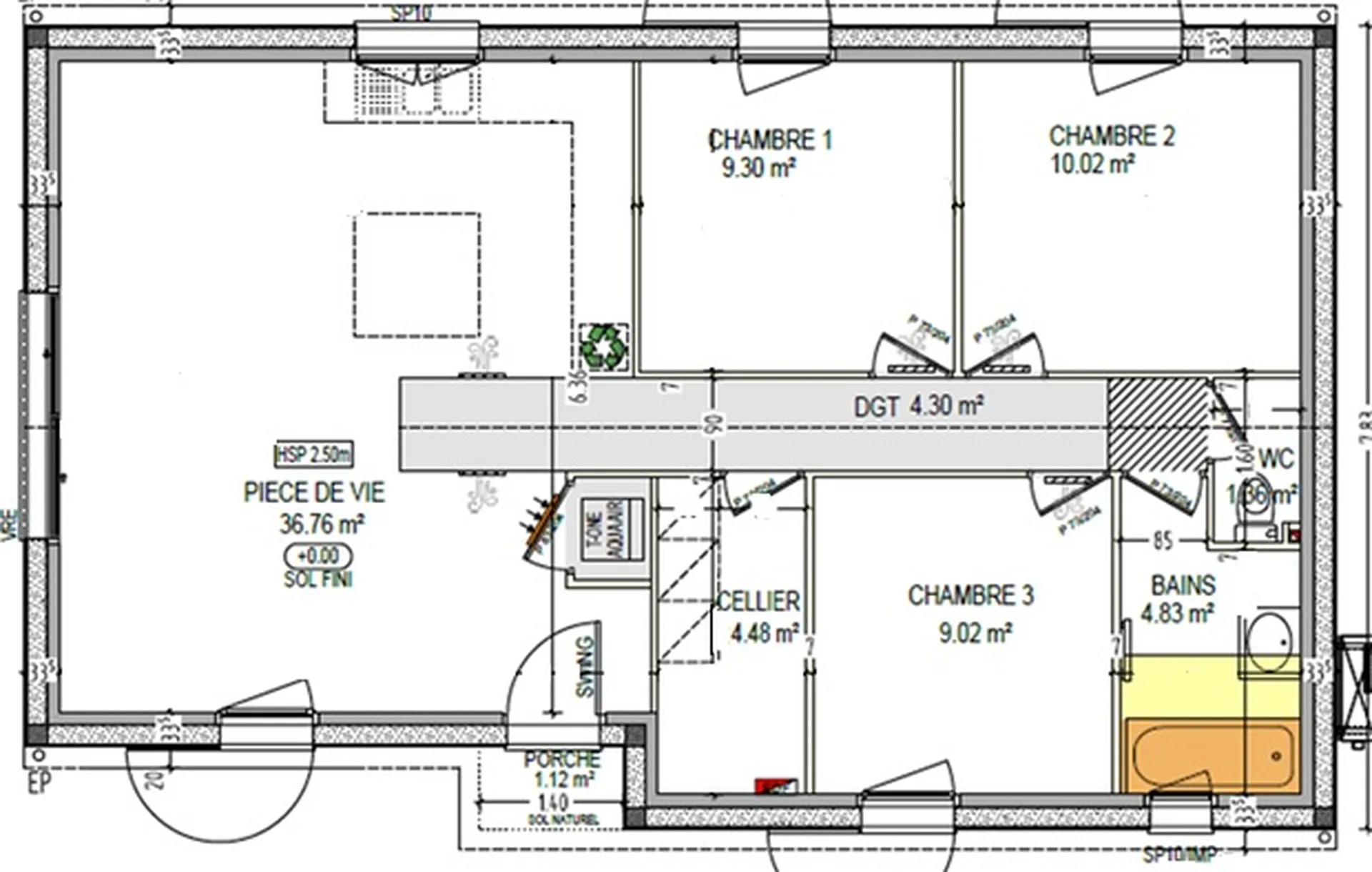
Cette maison de 80 m², réalisée par par FREED'HOME HABITAT, propose trois chambres confortables et une belle pièce de vie ouverte de 37 m², lumineuse et conviviale. Elle dispose également d’un cellier pratique et d’une salle de bain fonctionnelle, offrant un cadre de vie moderne, optimisé et parfaitement adapté au quotidien familial.

email Elaborons votre projet
Partager :

* Prix pour une finition hors d'eau hors d'air

email Elaborons votre projet
Engagement
Avec FREEDHOME, votre maison est
architecture
Moderne
dashboard_customize
Personnalisable
verified
Garantie
savings
Accessible
Discutons de votre projet
Les champs indiqués par un astérisque (*) sont obligatoires
Besoin de plus d'informations ?
Nous sommes à votre disposition pour toute demande