1. Accueil
  2. Nos maisons
  3. Maisons Plain-pied
  4. Maison plain-pied de 60 m²
Retour
FIRST 60

Maison plain-pied de 60 m²

email Elaborons votre projet

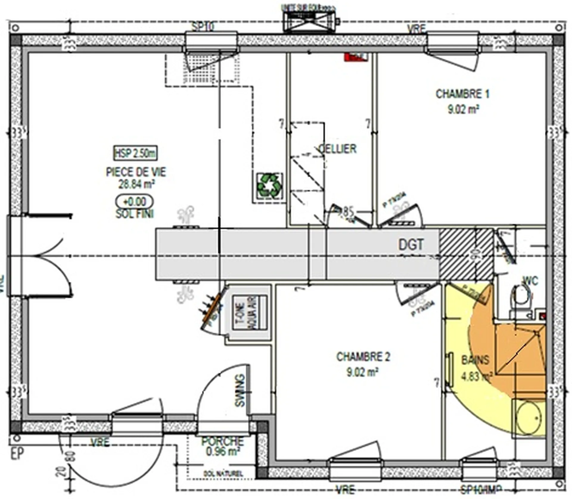
Découvrez notre modèle FIRST 60 :

Cette maison de 60 m², réalisée par FREED'HOME HABITAT, propose un agencement optimisé avec deux chambres confortables, une pièce de vie lumineuse ouverte sur la cuisine, un cellier pratique et une salle de bain fonctionnelle, offrant un cadre de vie agréable, moderne et adapté à un quotidien et très efficace.

email Elaborons votre projet
Partager :

* Prix pour une finition hors d'eau hors d'air

email Elaborons votre projet
Engagement
Avec FREEDHOME, votre maison est
architecture
Moderne
dashboard_customize
Personnalisable
verified
Garantie
savings
Accessible
Discutons de votre projet
Les champs indiqués par un astérisque (*) sont obligatoires
Besoin de plus d'informations ?
Nous sommes à votre disposition pour toute demande