Maison L1

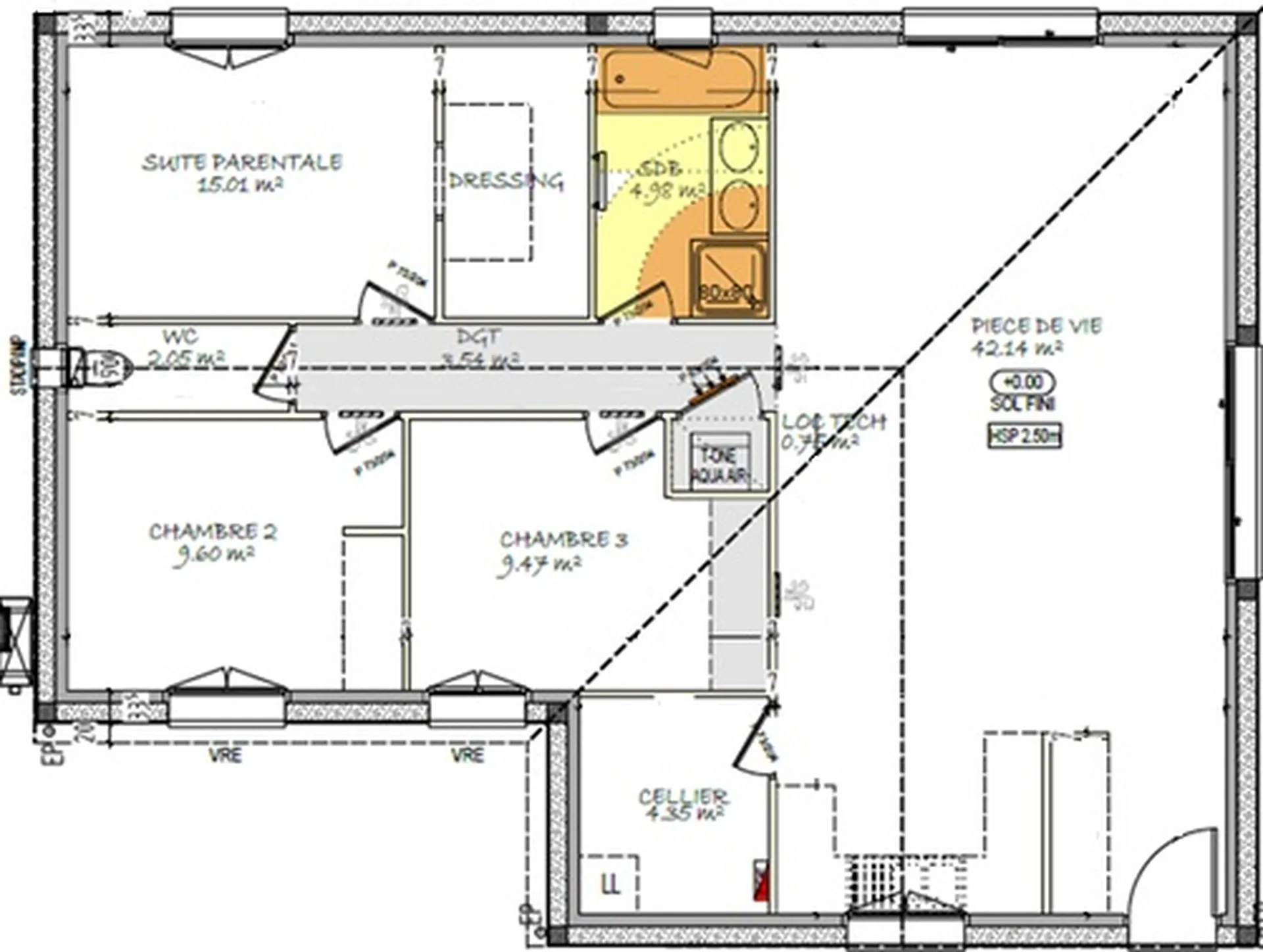
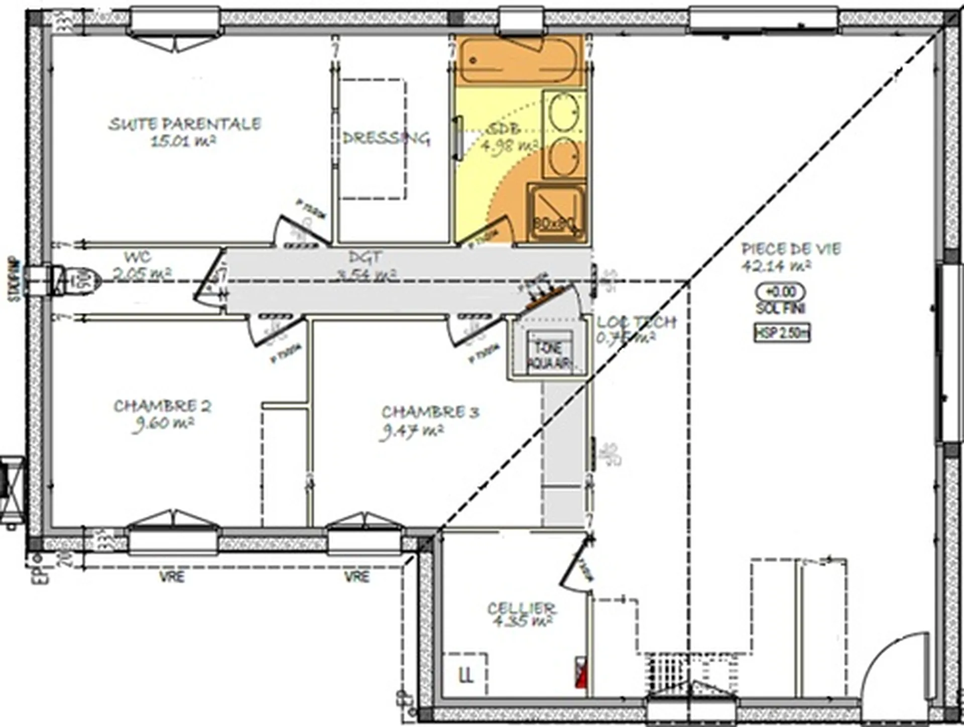
Maison en L de 92 m²

email Elaborons votre projet

Découvrez notre modèle L1 :

Maison en L de 92 m² réalisée par FREED'HOME HABITAT, offrant une suite parentale avec dressing et deux chambres. La pièce de vie de 42 m² propose un espace lumineux et convivial, ouvert sur l’extérieur. Un cellier complète l’agencement, apportant praticité et confort pour un cadre de vie fonctionnel et agréable au quotidien.

email Elaborons votre projet
Partager :

* Prix pour une finition hors d'eau hors d'air

email Elaborons votre projet
Engagement
Avec FREEDHOME, votre maison est
architecture
Moderne
dashboard_customize
Personnalisable
verified
Garantie
savings
Accessible
Discutons de votre projet
Les champs indiqués par un astérisque (*) sont obligatoires
Besoin de plus d'informations ?
Nous sommes à votre disposition pour toute demande