Maison L3

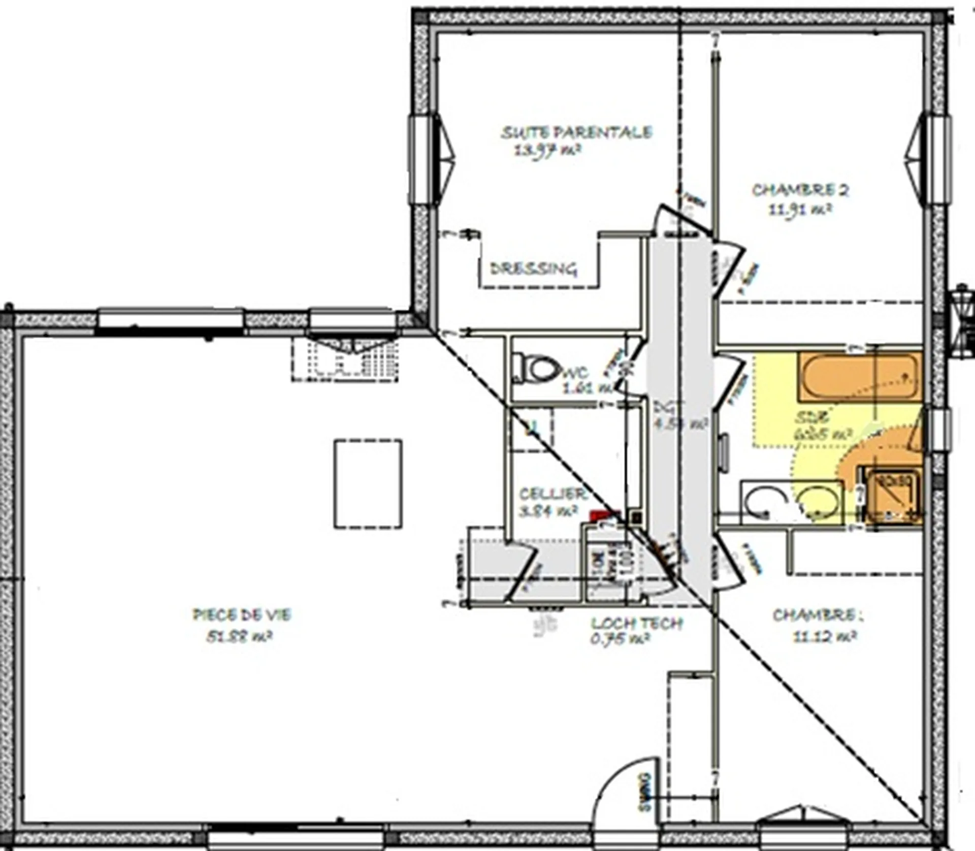
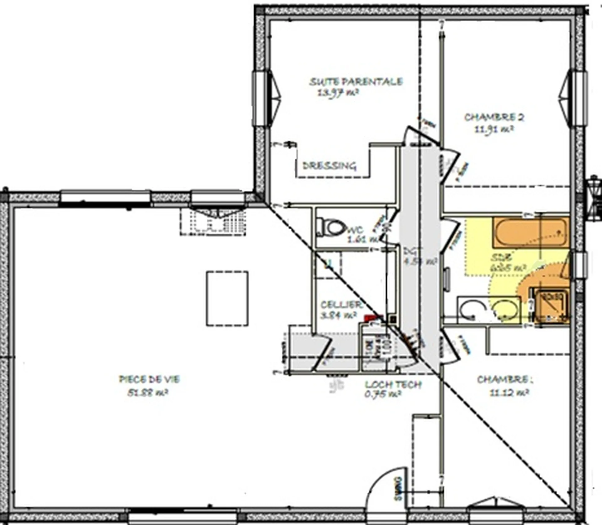
Maison en L de 106 m²

email Elaborons votre projet

Découvrez notre modèle L3 :

Maison en L de 106 m² réalisée par FREED'HOME HABITAT, offrant une suite parentale avec dressing et deux chambres confortables. La pièce de vie de 52 m² propose un espace lumineux et généreux. Un cellier fonctionnel complète l’ensemble, assurant praticité, confort et organisation pour un quotidien familial agréable et moderne.

email Elaborons votre projet
Partager :

* Prix pour une finition hors d'eau hors d'air

email Elaborons votre projet
Engagement
Avec FREEDHOME, votre maison est
architecture
Moderne
dashboard_customize
Personnalisable
verified
Garantie
savings
Accessible
Discutons de votre projet
Les champs indiqués par un astérisque (*) sont obligatoires
Besoin de plus d'informations ?
Nous sommes à votre disposition pour toute demande