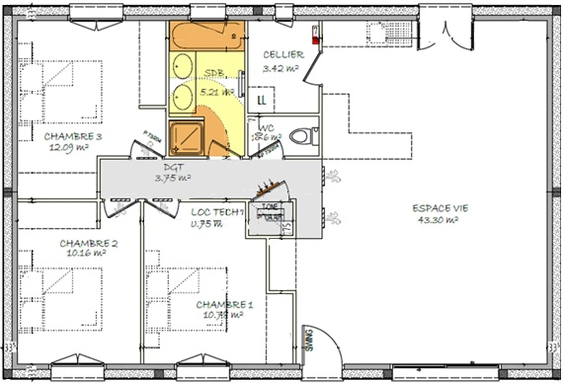
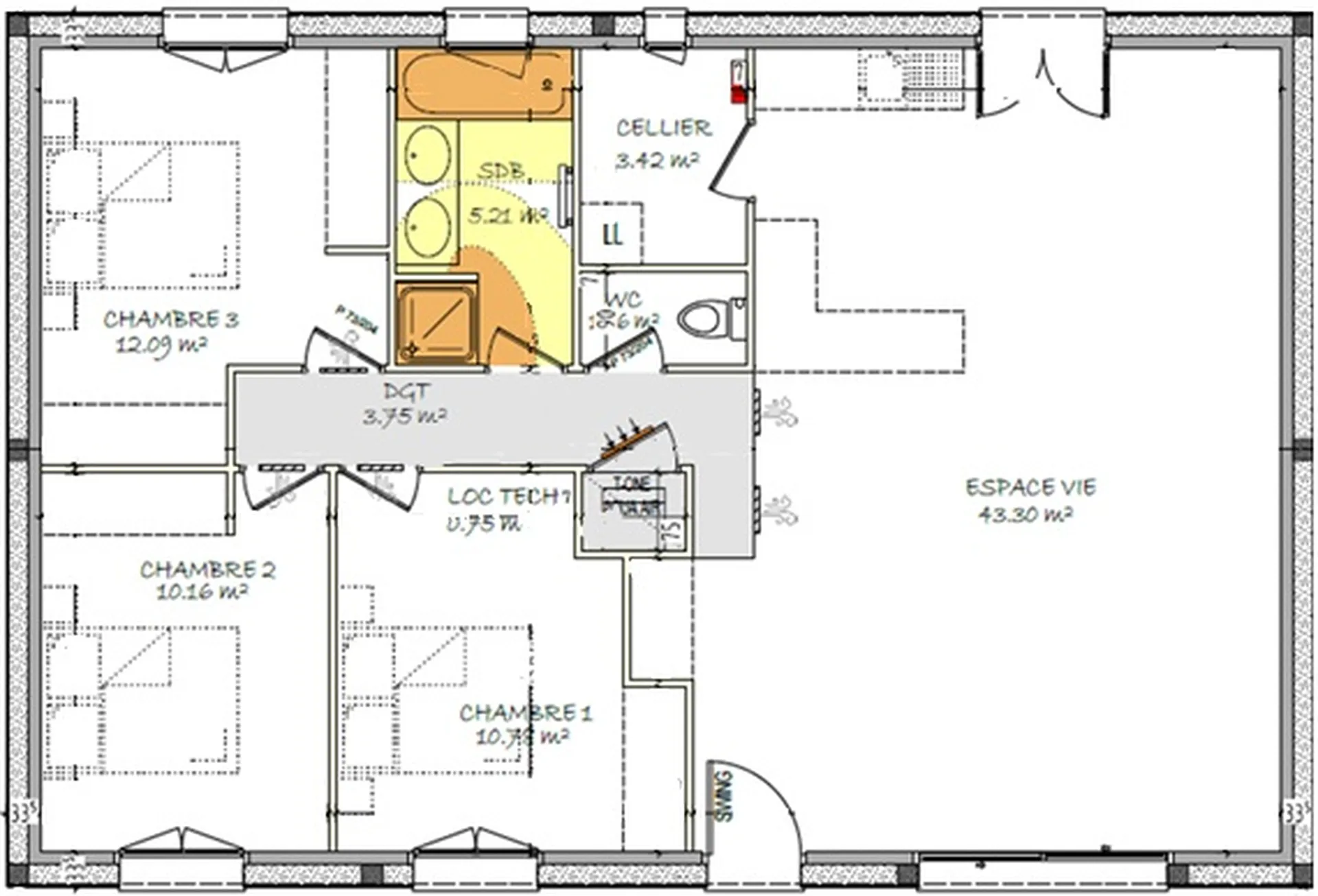
Maison D11

Maison droite de 91 m²

email Elaborons votre projet

Découvrez notre modèle D11 :

Maison de 91 m², réalisée par FREED'HOME HABITAT, proposant trois chambres adaptées à la vie familiale. La pièce de vie de 43 m² séduit par sa luminosité et son volume généreux. Un cellier vient compléter l’ensemble, offrant un espace de rangement pratique pour un intérieur fonctionnel, agréable et parfaitement optimisé au quotidien.

email Elaborons votre projet
Partager :

* Prix pour une finition hors d'eau hors d'air

email Elaborons votre projet
Engagement
Avec FREEDHOME, votre maison est
architecture
Moderne
dashboard_customize
Personnalisable
verified
Garantie
savings
Accessible
Discutons de votre projet
Les champs indiqués par un astérisque (*) sont obligatoires
Besoin de plus d'informations ?
Nous sommes à votre disposition pour toute demande