1. Accueil
  2. Nos maisons
  3. Maisons Plain-pied
  4. Maison droite de 90 m² avec garage
Retour
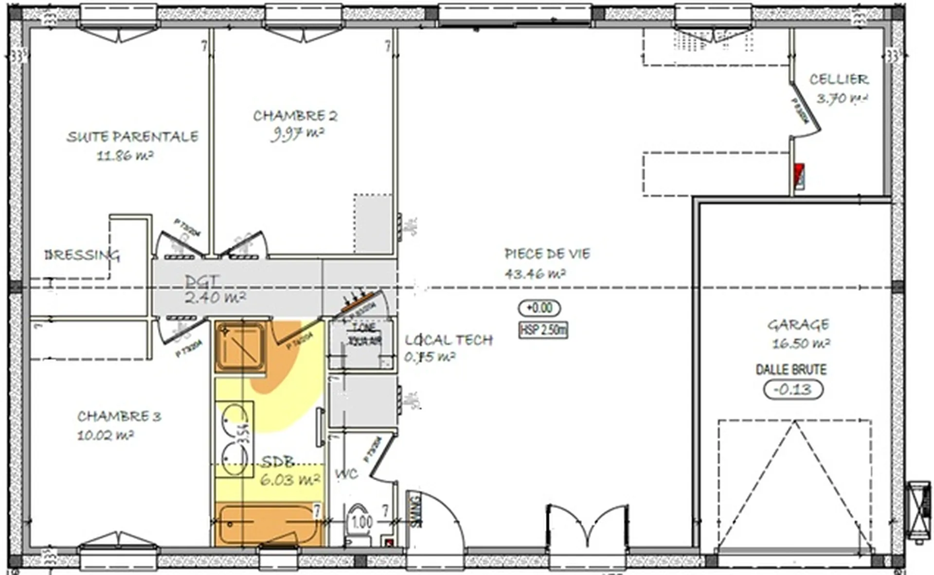
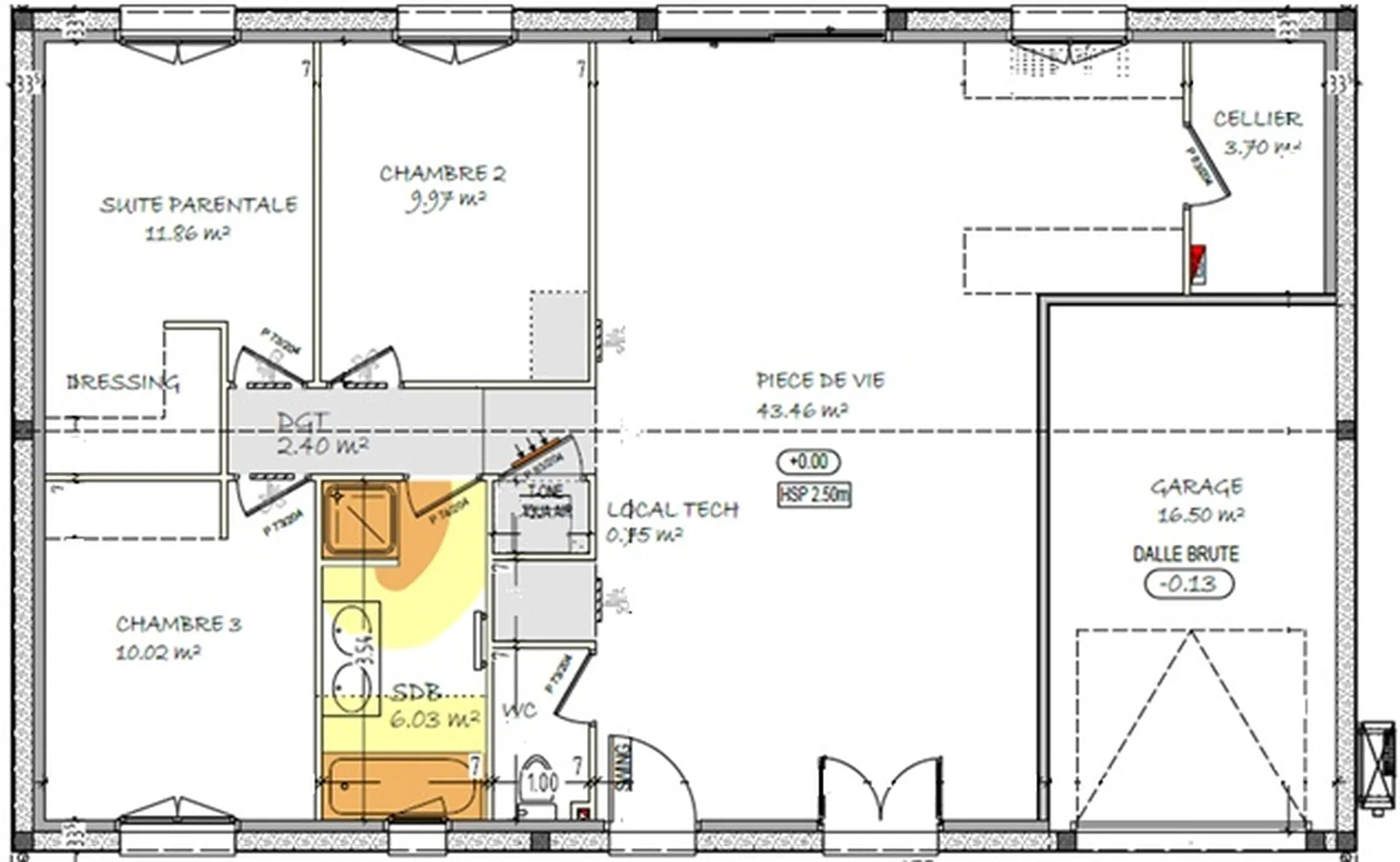
Maison D5

Maison droite de 90 m² avec garage

email Elaborons votre projet

Découvrez notre modèle D5 avec garage :

Maison contemporaine de 90 m², signée FREED'HOME HABITAT, offrant une suite parentale avec dressing et deux chambres. La pièce de vie de 43 m² constitue un espace lumineux et convivial. Un cellier pratique optimise le rangement. Un garage de 17 m² complète cet ensemble fonctionnel, idéal pour une famille.

email Elaborons votre projet
Partager :

* Prix pour une finition hors d'eau hors d'air

email Elaborons votre projet
Engagement
Avec FREEDHOME, votre maison est
architecture
Moderne
dashboard_customize
Personnalisable
verified
Garantie
savings
Accessible
Discutons de votre projet
Les champs indiqués par un astérisque (*) sont obligatoires
Besoin de plus d'informations ?
Nous sommes à votre disposition pour toute demande