Maison D10

Maison droite de 80 m²

email Elaborons votre projet

Découvrez notre modèle D10 :

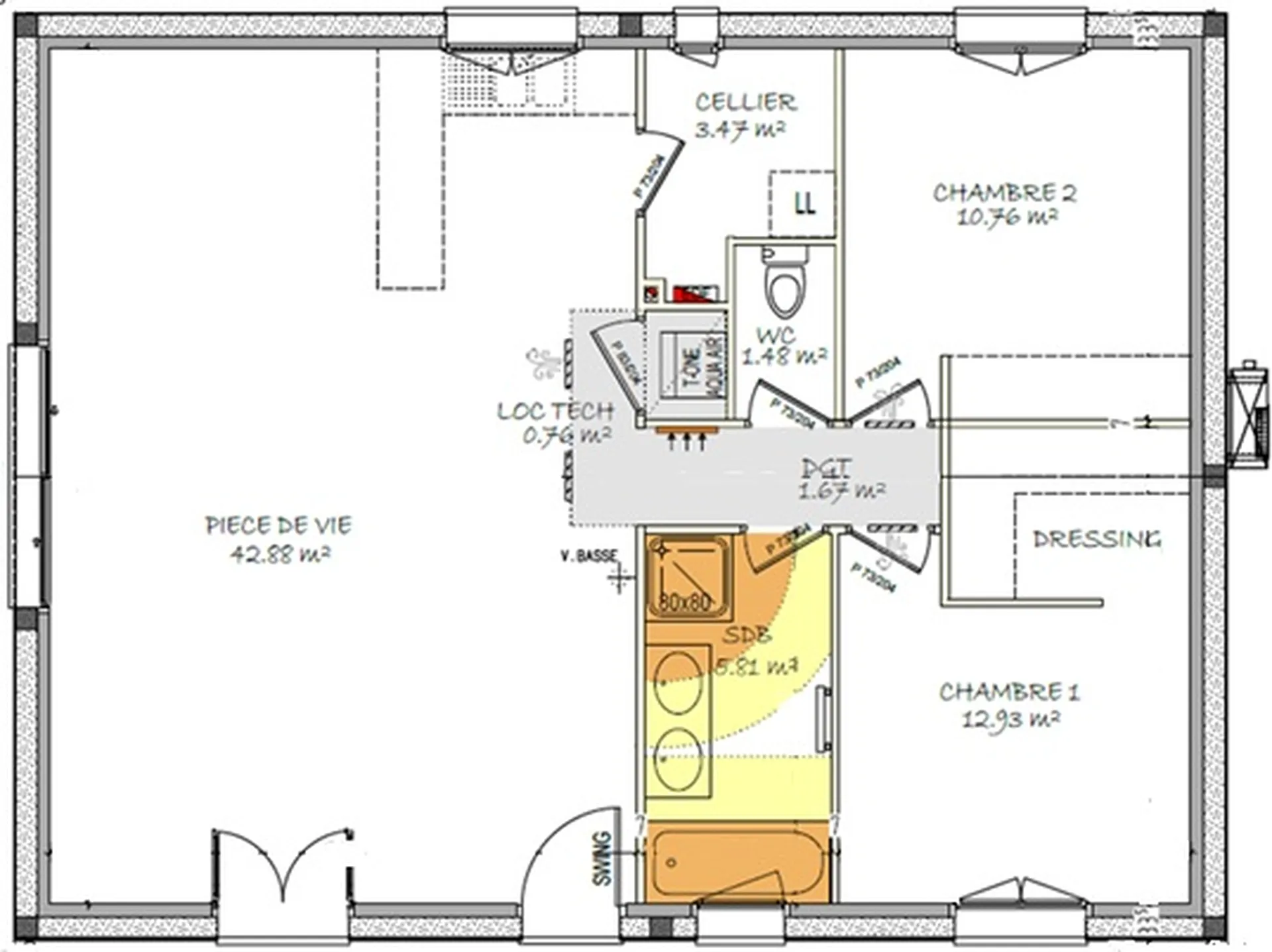
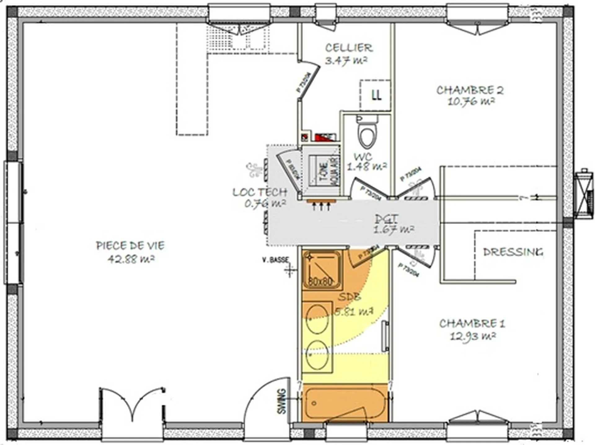
Maison contemporaine de 80 m², signée FREED'HOME HABITAT, comprenant deux chambres confortables. La pièce de vie de 43 m² offre un espace lumineux et convivial, idéal pour partager des moments en famille. Un cellier pratique complète l’agencement, apportant fonctionnalité et optimisation des rangements au quotidien dans un cadre agréable et bien pensé.

email Elaborons votre projet
Partager :

* Prix pour une finition hors d'eau hors d'air

email Elaborons votre projet
Engagement
Avec FREEDHOME, votre maison est
architecture
Moderne
dashboard_customize
Personnalisable
verified
Garantie
savings
Accessible
Discutons de votre projet
Les champs indiqués par un astérisque (*) sont obligatoires
Besoin de plus d'informations ?
Nous sommes à votre disposition pour toute demande