Maison D13

Maison droite de 60 m²

email Elaborons votre projet

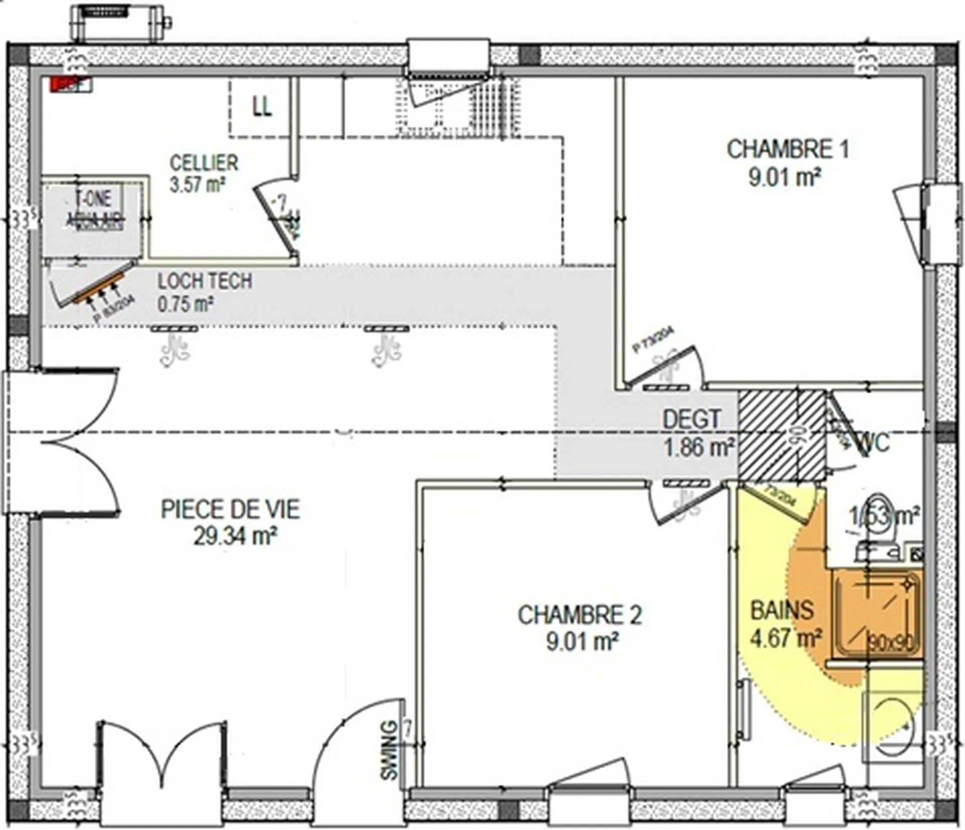
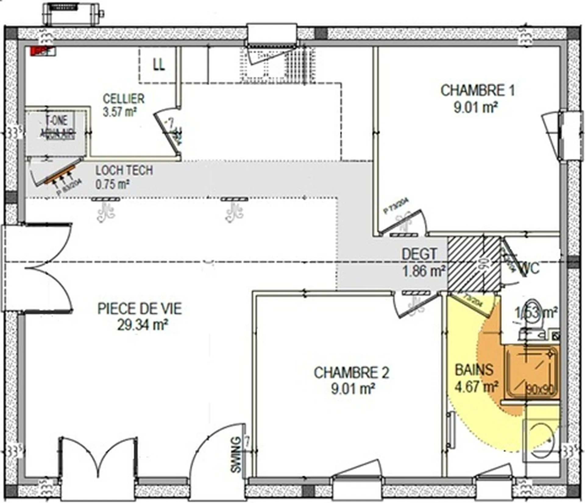
Découvrez notre modèle D13 :

Maison de 60 m², réalisée par FREED'HOME HABITAT, idéale pour un premier projet ou un investissement. Elle comprend deux chambres fonctionnelles. La pièce de vie de 29 m² offre un espace agréable et lumineux. Un cellier complète l’ensemble, apportant praticité et optimisation des rangements pour un quotidien confortable et bien organisé.

email Elaborons votre projet
Partager :

* Prix pour une finition hors d'eau hors d'air

email Elaborons votre projet
Engagement
Avec FREEDHOME, votre maison est
architecture
Moderne
dashboard_customize
Personnalisable
verified
Garantie
savings
Accessible
Discutons de votre projet
Les champs indiqués par un astérisque (*) sont obligatoires
Besoin de plus d'informations ?
Nous sommes à votre disposition pour toute demande