1. Accueil
  2. Nos maisons
  3. Maisons Plain-pied
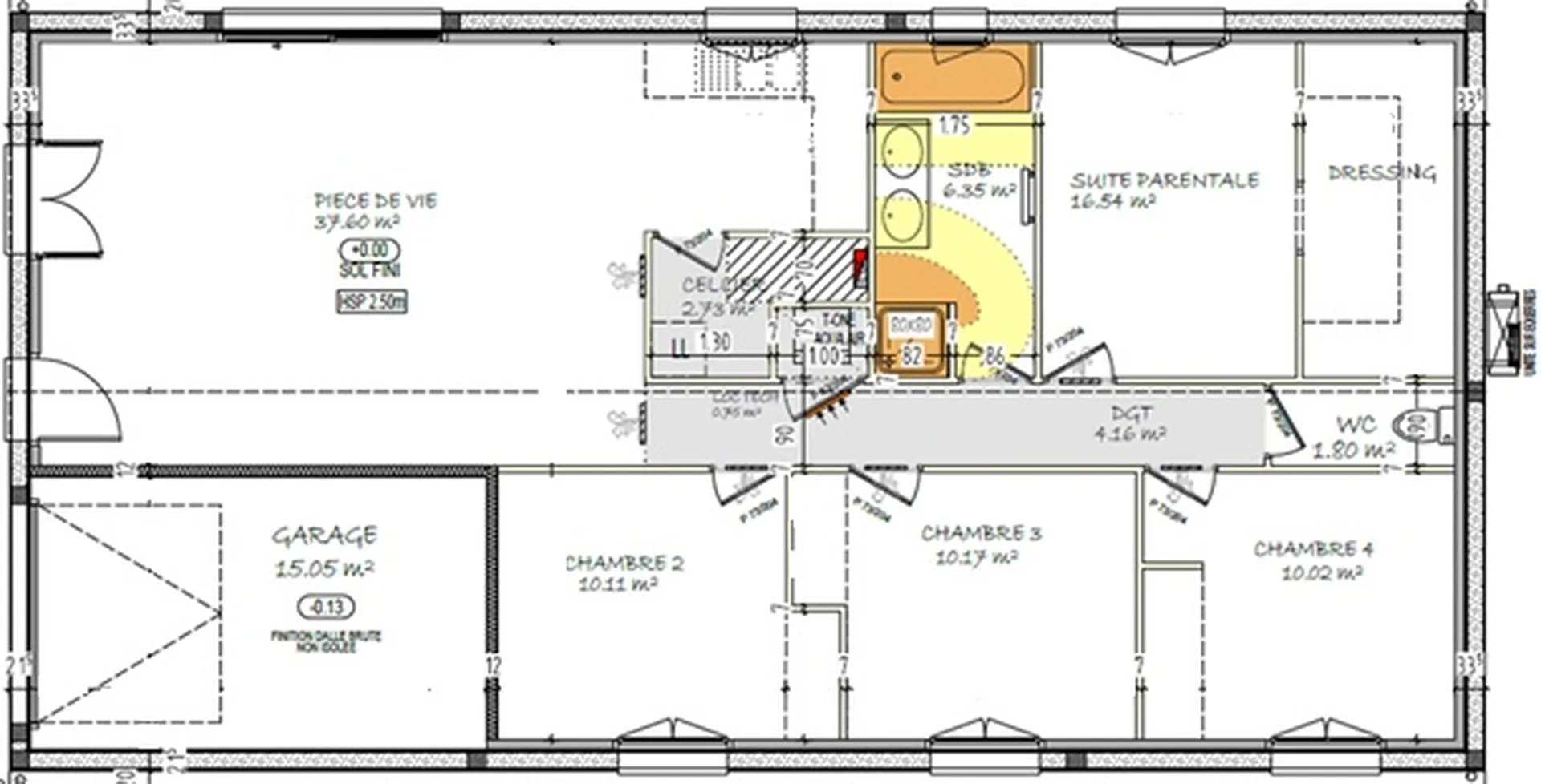
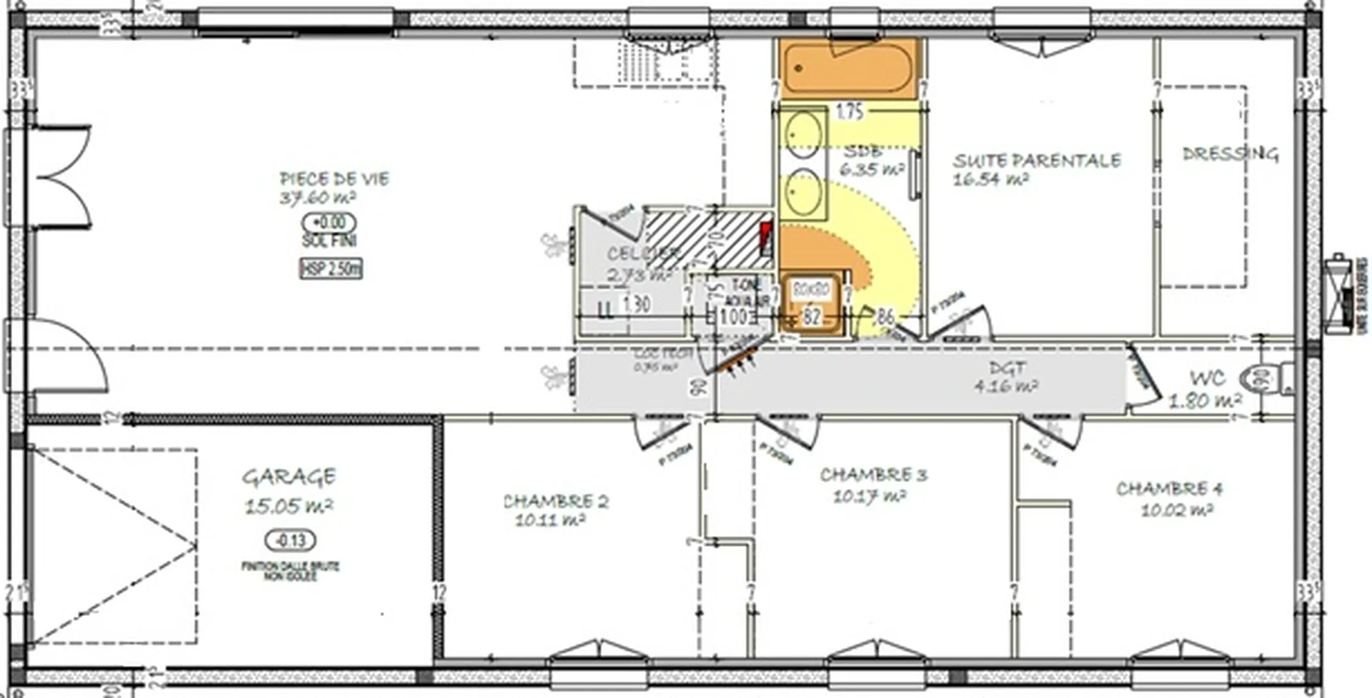
  4. Maison droite de 100 m² avec garage de 15 m²
Retour
Maison D1

Maison droite de 100 m² avec garage de 15 m²

email Elaborons votre projet

Découvrez le modèle D1 avec son garage :

Maison contemporaine de 100 m² signée FREED'HOME HABITAT, comprenant une suite parentale avec dressing et trois chambres. La pièce de vie de 38 m² offre un espace lumineux et convivial. Un garage de 15 m² complète ce projet fonctionnel, pensé pour le confort et la praticité au quotidien.

email Elaborons votre projet
Partager :

* Prix pour une finition hors d'eau hors d'air

email Elaborons votre projet
Engagement
Avec FREEDHOME, votre maison est
architecture
Moderne
dashboard_customize
Personnalisable
verified
Garantie
savings
Accessible
Discutons de votre projet
Les champs indiqués par un astérisque (*) sont obligatoires
Besoin de plus d'informations ?
Nous sommes à votre disposition pour toute demande