1. Accueil
  2. Nos maisons
  3. Maisons Plain-pied
  4. Maison droite de 100 m² avec garage de 15 m²
Retour
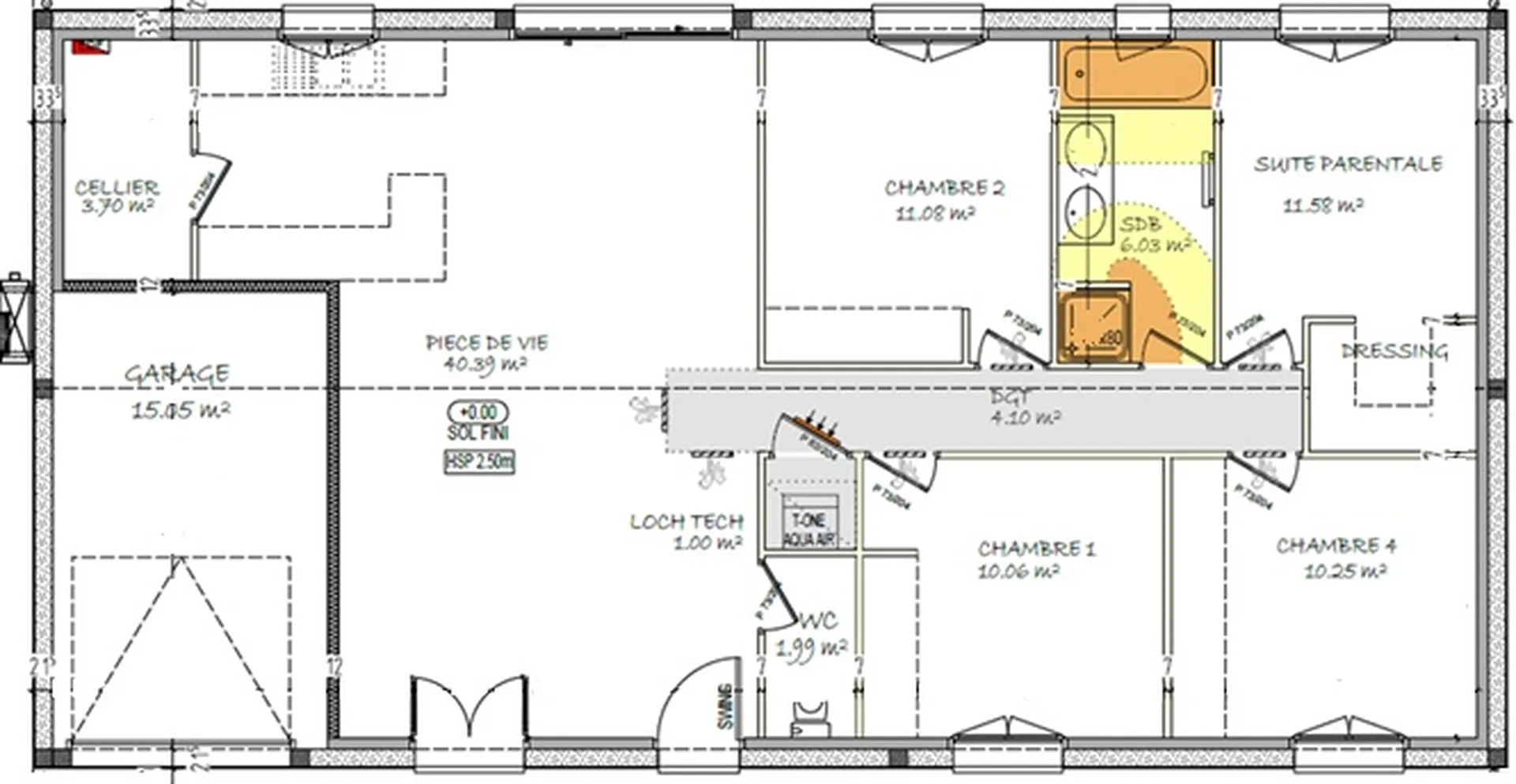
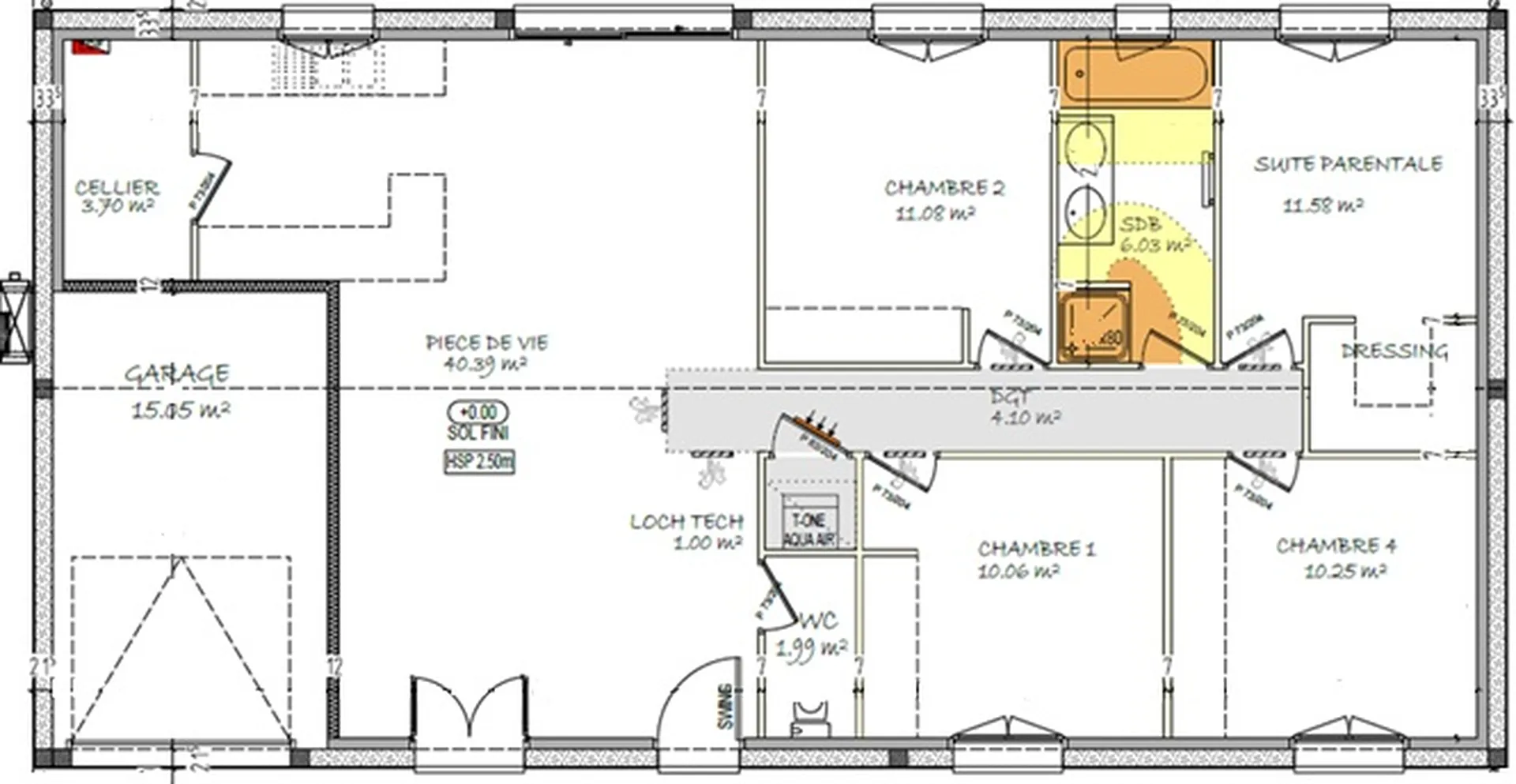
Maison D3

Maison droite de 100 m² avec garage de 15 m²

email Elaborons votre projet

Découvrez notre modèle D3 avec garage :

Maison contemporaine de 100 m² signée FREED'HOME HABITAT, composée d’une suite parentale avec dressing et de trois chambres. La pièce de vie de 40 m² offre un espace lumineux et convivial. Un cellier fonctionnel et un garage complètent cet ensemble harmonieux, pensé pour le confort et la praticité au quotidien.   

email Elaborons votre projet
Partager :

* Prix pour une finition hors d'eau hors d'air

email Elaborons votre projet
Engagement
Avec FREEDHOME, votre maison est
architecture
Moderne
dashboard_customize
Personnalisable
verified
Garantie
savings
Accessible
Discutons de votre projet
Les champs indiqués par un astérisque (*) sont obligatoires
Besoin de plus d'informations ?
Nous sommes à votre disposition pour toute demande